


Bolineni Sierra
residential villa @ Perumbakkam
by BSCPL Infrastructure Ltd
About Bolineni Sierra
Bollineni Sierra Villas is a premium villa township spread across 3.9 acres, offering an exclusive collection of around 58luxury homes at Perumbakkam near Sholinganallur, Chennai. The project features spacious G+2 villas with plot sizes ranging from approx. 1400 to 2900 sq.ft. and built-up areas up to nearly 6000 sq.ft. Designed for upscale living, it includes east- and north-facing villas with high construction quality and modern layouts. Residents enjoy a dual clubhouse advantage, along with amenities like a swimming pool, gym, landscaped gardens, and jogging tracks. With added features such as a cricket ground, reflexology path, and kids’ play zones, it offers a vibrant and lifestyle-focused community.
Bolineni Sierra Project Configuration
RERA Number
TNRERA/35/LO/0987/2026
Development Size
3.9 Acres
Number of Units
58
Bedrooms
3 & 4 Bhk
Possession Date
new launch
Price Range
3.7 Cr onwards
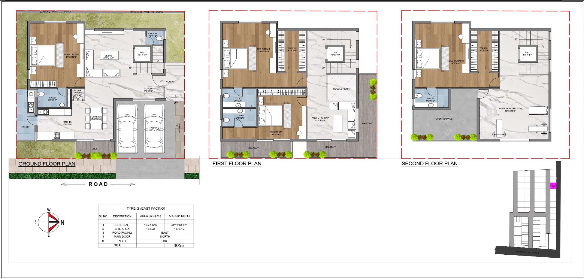
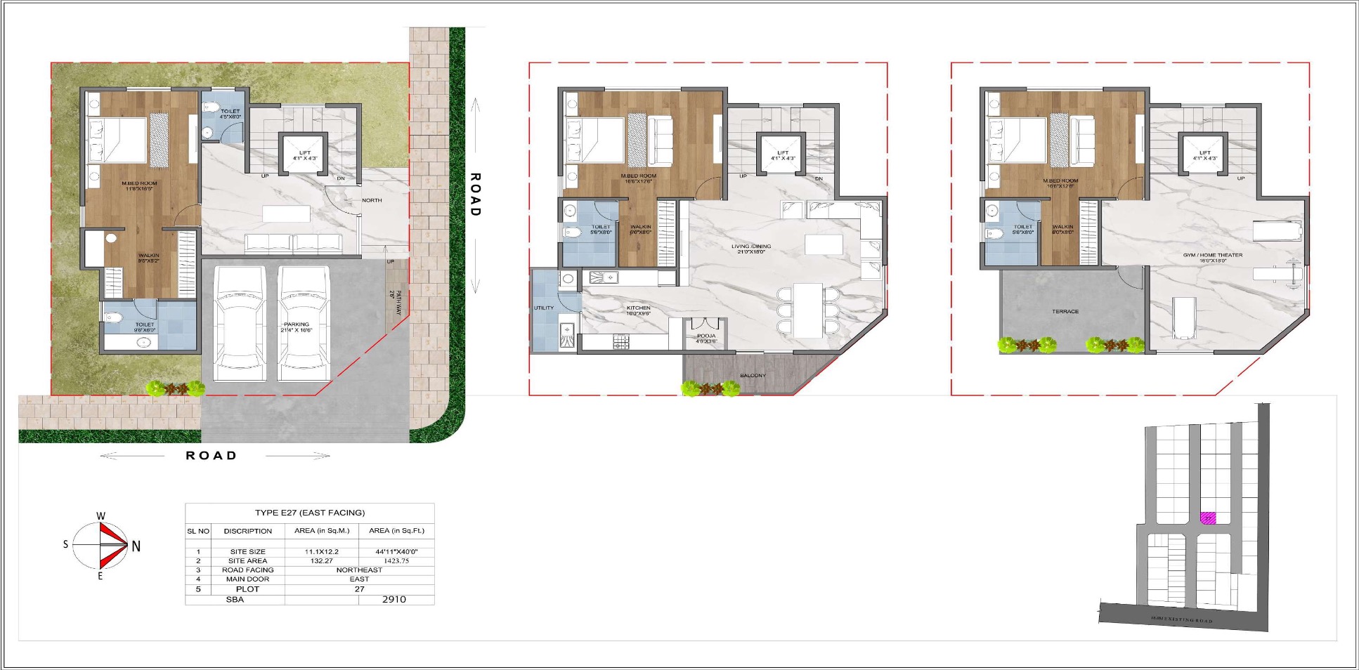
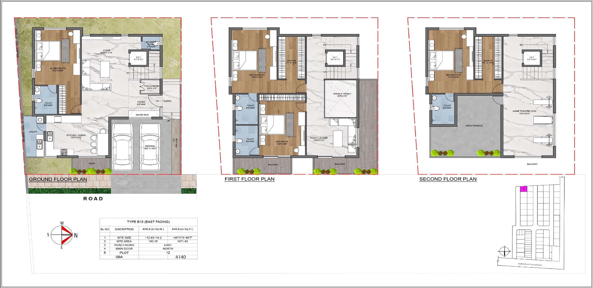
Bolineni Sierra Floor Plans
Bolineni Sierra Unit Types & Sizes
Available Units
Explore unit options and enquire instantly.
| Unit Type | Size | Price |
|---|---|---|
| 3 Bhk Villa | 2895 sqft | |
| 4 Bhk Villas | 2895 - 5955 sqft |
Bolineni Sierra Walkthrough Video
Bolineni Sierra Location
Bolineni Sierra Amenities
Bolineni Sierra FAQs
1. Where is this villa project Bollineni Sierra located?
2. What types of villas are available at Bollineni Sierra ?.
3. What amenities are available within the community of Bollineni Sierra ?.
4. Is the project Bollineni Sierra ready to move in or under construction?
5. How can I get more details or schedule a site visit?
Ratings & Reviews
About BSCPL Infrastructure Ltd
BSCPL Infrastructure Ltd is a well-established Indian company with expertise in both infrastructure and real estate development. It has executed major engineering and construction projects, including highways, bridges, and urban infrastructure. The group has expanded into real estate through its Bollineni brand, delivering residential and township projects. With decades of experience, it is known for strong technical capability and quality execution. The company focuses on creating reliable, well-planned developments with long-term value.
Visit Builder Pagewant to know more?
Contact Our Expert!
We’re Happy to Help
Why Choose Us
Looking for the right partner to help sell | buy | rent a property? Look no further for genuine, transparent & professional advice from our experts.
0+
Developers
0+
Locations
0+
Projects
0+
Happy Customers
This website is owned and managed by Chennai Gated Community, an authorised channel partner of BSCPL Infrastructure Ltd, and is not the official website of the developer. The information, visuals, and project details presented here are for informational purposes only and are subject to change without prior notice. Nothing contained herein shall be construed as a legal offer, promise, or commitment. Visitors are strongly advised to verify all details directly with the developer before making any purchase or investment decision.




















